cena Lokalu usługowego (netto)

1 178 415 PLN

cena za metr kw.

10 500 PLN

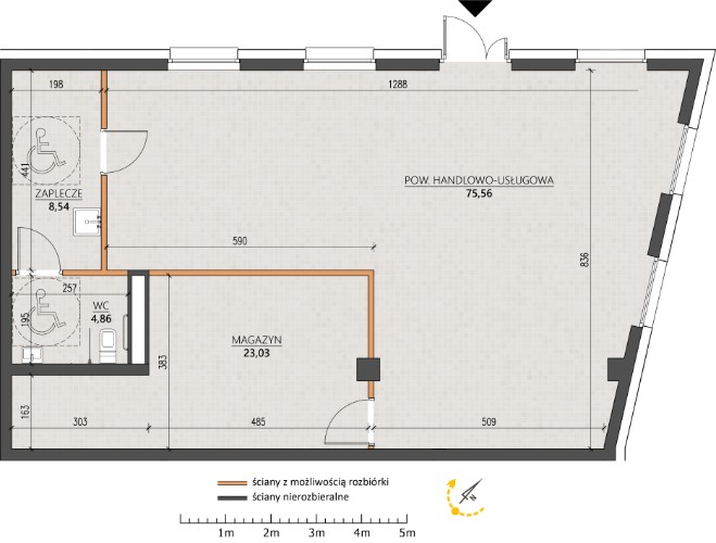
Budynek Konopnickiej 16
Powierzchnia 112,23 m2
Piętro 0 (Parter)
Całkowita cena netto
1 178 415 PLN