cena Lokalu usługowego (netto)

710 000 PLN

cena za metr kw.

10 000 PLN

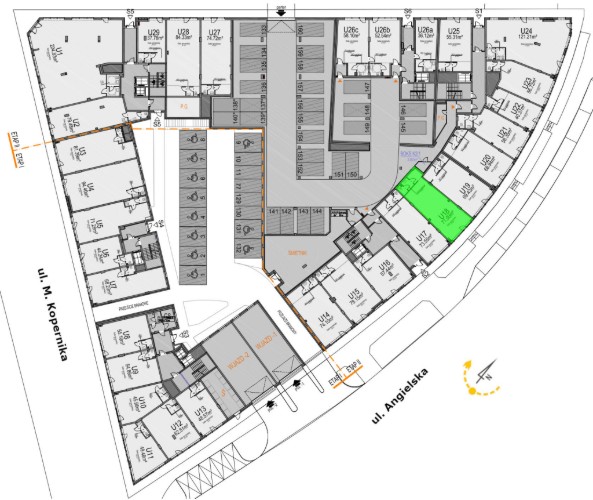
Budynek Angielska 30
Powierzchnia 71,00 m2
Piętro 0 (Parter)
Całkowita cena netto
710 000 PLN