cena Mieszkania

693 720 PLN

cena za metr kw.

12 300 PLN

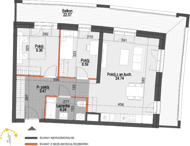
Budynek Kopernika IV
Powierzchnia 56,40 m2
Piętro 3 (Piętro III)
Pokoje 3
Balkon ok. 22,57 m²
Całkowita cena brutto
693 720 PLN