cena Mieszkania

699 360 PLN

cena za metr kw.

12 400 PLN

Budynek Kopernika IV
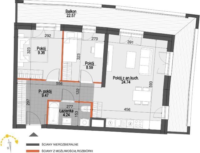
Powierzchnia 56,40 m2
Piętro 4 (Piętro IV)
Pokoje 3
Balkon ok. 22,57 m²
Całkowita cena brutto
699 360 PLN