cena Mieszkania

817 665 PLN

cena za metr kw.

13 068 PLN

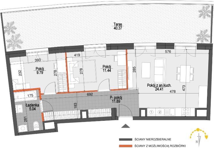
Budynek Kopernika IV
Powierzchnia 62,57 m2
Piętro 6 (Piętro VI)
Pokoje 3
Taras na dachu ok. 40,37 m²
Całkowita cena brutto
817 665 PLN