cena Mieszkania

807 356 PLN

cena za metr kw.

13 181 PLN

Budynek Kopernika IV
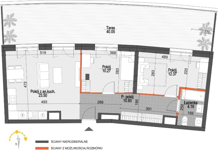
Powierzchnia 61,25 m2
Piętro 6 (Piętro VI)
Pokoje 3
Taras na dachu ok. 40,05 m²
Całkowita cena brutto
807 356 PLN