cena Mieszkania

649 236 PLN

cena za metr kw.

11 800 PLN

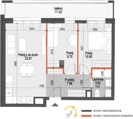
Budynek Kopernika IV
Powierzchnia 55,02 m2
Piętro 2 (Piętro II)
Pokoje 3
Balkon ok. 11,32 m²
Całkowita cena brutto
649 236 PLN