cena Mieszkania

654 738 PLN

cena za metr kw.

11 900 PLN

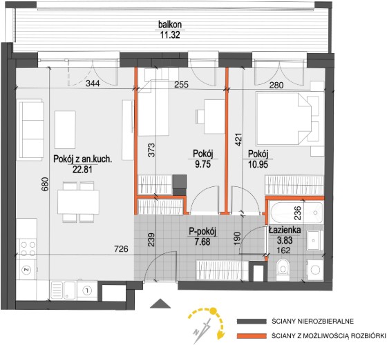
Budynek Kopernika IV
Powierzchnia 55,02 m2
Piętro 3 (Piętro III)
Pokoje 3
Balkon ok. 11,32 m²
Całkowita cena brutto
654 738 PLN