cena Mieszkania

499 562 PLN

cena za metr kw.

11 900 PLN

Budynek Kopernika IV
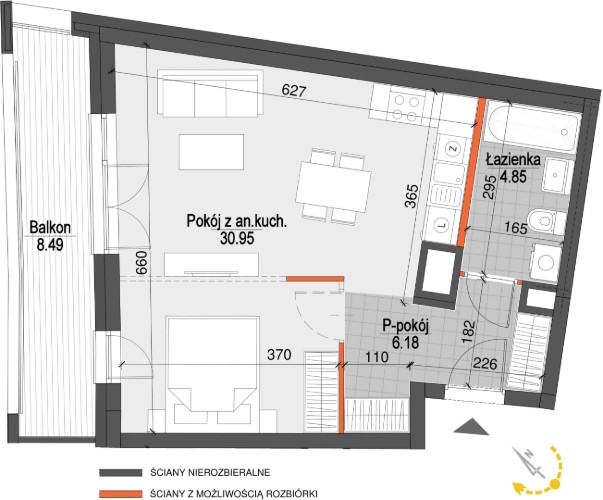
Powierzchnia 41,98 m2
Piętro 3 (Piętro III)
Pokoje 1
Całkowita cena brutto
499 562 PLN