cena Mieszkania

498 883 PLN

cena za metr kw.

12 100 PLN

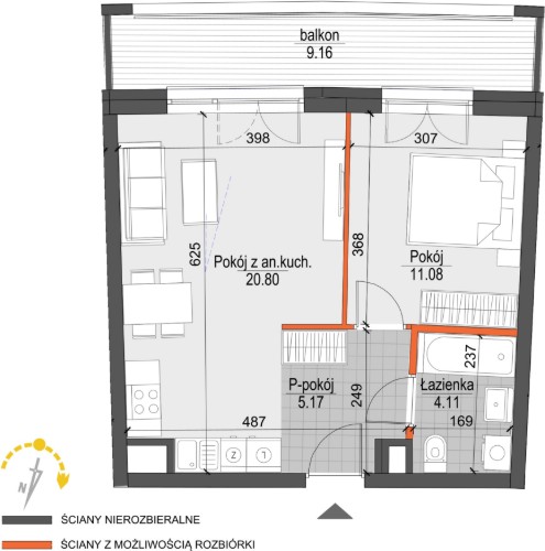
Budynek Kopernika IV
Powierzchnia 41,23 m2
Piętro 3 (Piętro III)
Pokoje 2
Całkowita cena brutto
498 883 PLN