cena Mieszkania

503 006 PLN

cena za metr kw.

12 200 PLN

Budynek Kopernika IV
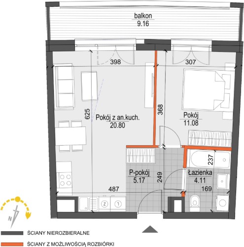
Powierzchnia 41,23 m2
Piętro 4 (Piętro IV)
Pokoje 2
Całkowita cena brutto
503 006 PLN