cena Mieszkania

602 841 PLN

cena za metr kw.

11 100 PLN

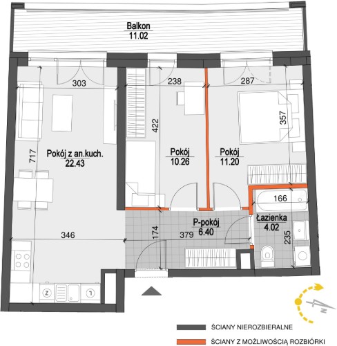
Budynek Kopernika IV
Powierzchnia 54,31 m2
Piętro 1 (Piętro I)
Pokoje 3
Całkowita cena brutto
602 841 PLN