cena Mieszkania

665 742 PLN

cena za metr kw.

12 100 PLN

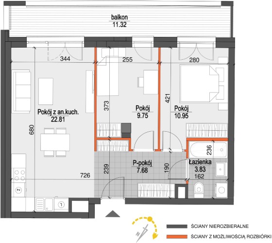
Budynek Kopernika IV
Powierzchnia 55,02 m2
Piętro 5 (Piętro V)
Pokoje 3
Balkon ok. 11,32 m²
Całkowita cena brutto
665 742 PLN