cena Mieszkania

507 129 PLN

cena za metr kw.

12 300 PLN

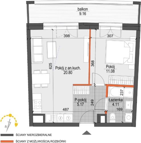
Budynek Kopernika IV
Powierzchnia 41,23 m2
Piętro 5 (Piętro V)
Pokoje 2
Całkowita cena brutto
507 129 PLN