cena Mieszkania

858 878 PLN

cena za metr kw.

13 374 PLN

Budynek Kopernika IV
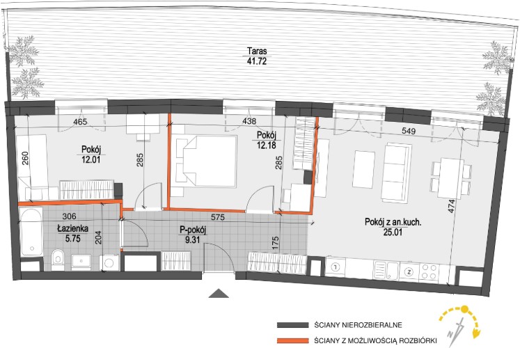
Powierzchnia 64,22 m2
Piętro 6 (Piętro VI)
Pokoje 3
Taras na dachu ok. 41,72 m²
Całkowita cena brutto
858 878 PLN