cena Mieszkania

640 858 PLN

cena za metr kw.

11 800 PLN

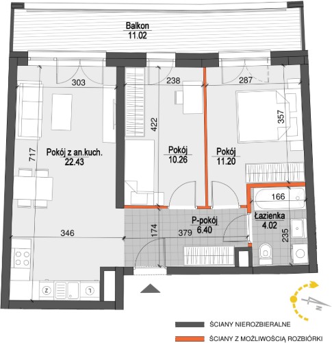
Budynek Kopernika IV
Powierzchnia 54,31 m2
Piętro 5 (Piętro V)
Pokoje 3
Całkowita cena brutto
640 858 PLN