cena Mieszkania

642 510 PLN

cena za metr kw.

11 800 PLN

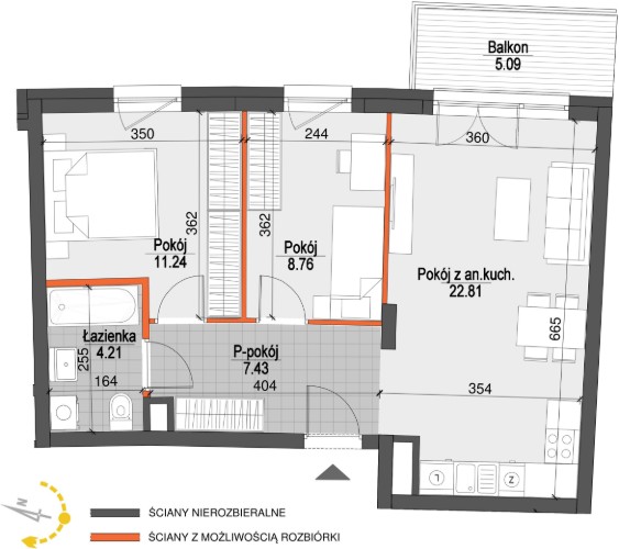
Budynek Kopernika IV
Powierzchnia 54,45 m2
Piętro 6 (Piętro VI)
Pokoje 3
Całkowita cena brutto
642 510 PLN