cena Mieszkania

512 156 PLN

cena za metr kw.

12 200 PLN

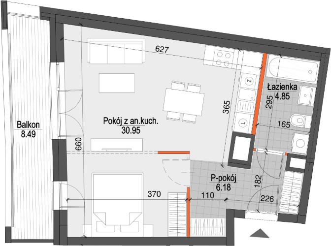
Budynek Kopernika IV
Powierzchnia 41,98 m2
Piętro 6 (Piętro VI)
Pokoje 1
Całkowita cena brutto
512 156 PLN