cena Mieszkania

1 259 765 PLN

cena za metr kw.

12 783 PLN

Budynek Kopernika IV
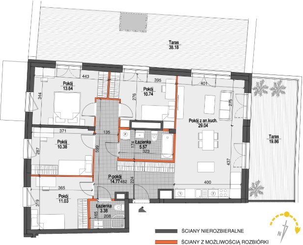
Powierzchnia 98,55 m2
Piętro 7 (Piętro VII)
Pokoje 5
Taras na dachu ok. 19,86 m²
Taras ok. 38,18 m²
Całkowita cena brutto
1 259 765 PLN