cena Mieszkania

451 215 PLN

cena za metr kw.

11 100 PLN

Budynek Kopernika IV
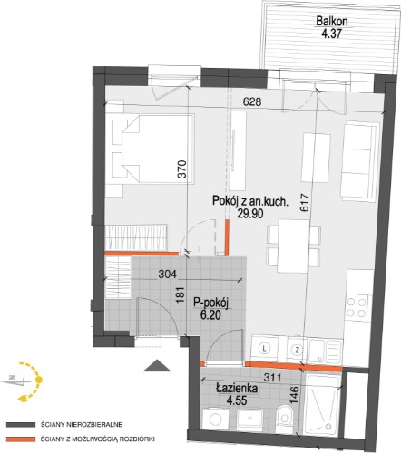
Powierzchnia 40,65 m2
Piętro 1 (Piętro I)
Pokoje 1
Całkowita cena brutto
451 215 PLN