cena Mieszkania

489 520 PLN

cena za metr kw.

11 600 PLN

Budynek Kopernika IV
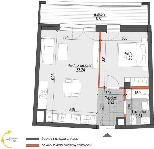
Powierzchnia 42,20 m2
Piętro 1 (Piętro I)
Pokoje 2
Całkowita cena brutto
489 520 PLN