cena Mieszkania

484 374 PLN

cena za metr kw.

12 300 PLN

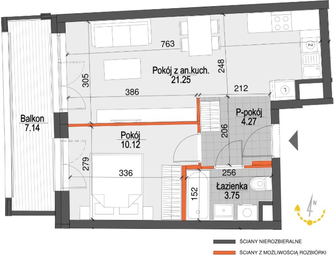
Budynek Kopernika IV
Powierzchnia 39,38 m2
Piętro 2 (Piętro II)
Pokoje 2
Całkowita cena brutto
484 374 PLN