cena Mieszkania

479 670 PLN

cena za metr kw.

11 800 PLN

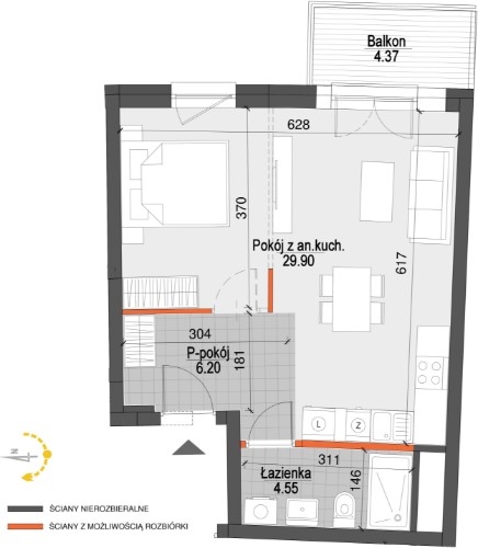
Budynek Kopernika IV
Powierzchnia 40,65 m2
Piętro 4 (Piętro IV)
Pokoje 1
Całkowita cena brutto
479 670 PLN