cena Mieszkania

646 440 PLN

cena za metr kw.

12 000 PLN

Budynek Kopernika IV
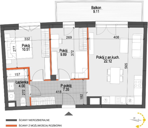
Powierzchnia 53,87 m2
Piętro 4 (Piętro IV)
Pokoje 3
Całkowita cena brutto
646 440 PLN