cena Mieszkania

511 250 PLN

cena za metr kw.

12 500 PLN

Budynek Kopernika IV
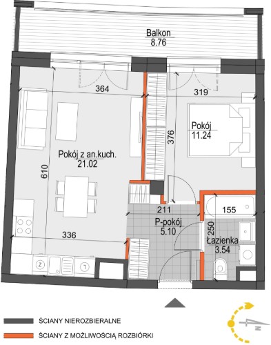
Powierzchnia 40,90 m2
Piętro 5 (Piętro V)
Pokoje 2
Całkowita cena brutto
511 250 PLN