cena Mieszkania

496 314 PLN

cena za metr kw.

12 600 PLN

Budynek Kopernika IV
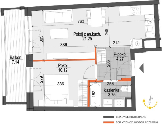
Powierzchnia 39,39 m2
Piętro 5 (Piętro V)
Pokoje 2
Całkowita cena brutto
496 314 PLN