cena Mieszkania

791 456 PLN

cena za metr kw.

13 430 PLN

Budynek Kopernika IV
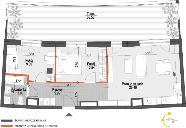
Powierzchnia 58,93 m2
Piętro 6 (Piętro VI)
Pokoje 3
Taras na dachu ok. 36,56 m²
Całkowita cena brutto
791 456 PLN