cena Mieszkania

673 375 PLN

cena za metr kw.

12 500 PLN

Budynek Kopernika IV
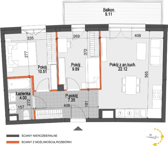
Powierzchnia 53,87 m2
Piętro 6 (Piętro VI)
Pokoje 3
Całkowita cena brutto
673 375 PLN