cena Mieszkania

654 240 PLN

cena za metr kw.

11 600 PLN

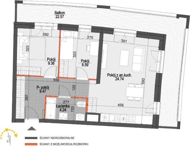
Budynek Kopernika IV
Powierzchnia 56,40 m2
Piętro 1 (Piętro I)
Pokoje 3
Balkon ok. 22,57 m²
Całkowita cena brutto
654 240 PLN