cena Mieszkania

550 084 PLN

cena za metr kw.

11 300 PLN

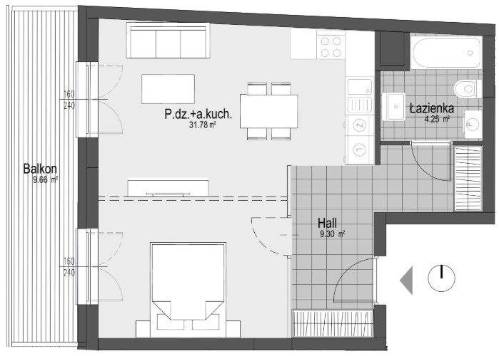
Budynek Generała Józefa Bema 45
Powierzchnia 48,68 m2
Piętro 4 (Piętro IV)
Całkowita cena brutto
550 084 PLN