cena Mieszkania

438 987 PLN

cena za metr kw.

8 300 PLN

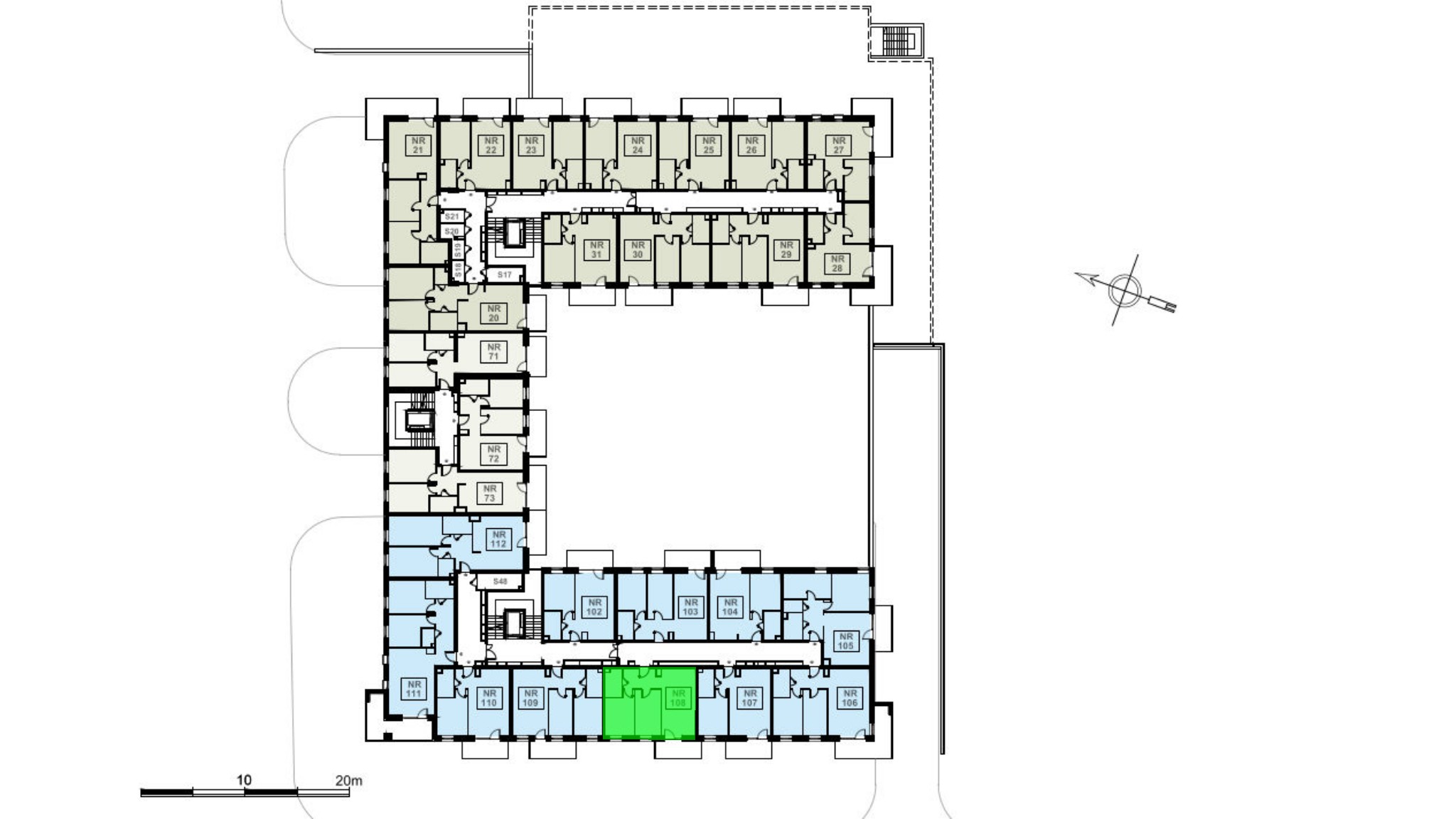
Budynek Ludowa C
Powierzchnia 52,89 m2
Piętro 2 (Piętro II)
Pokoje 3
Całkowita cena brutto
438 987 PLN