cena Mieszkania

439 236 PLN

cena za metr kw.

8 300 PLN

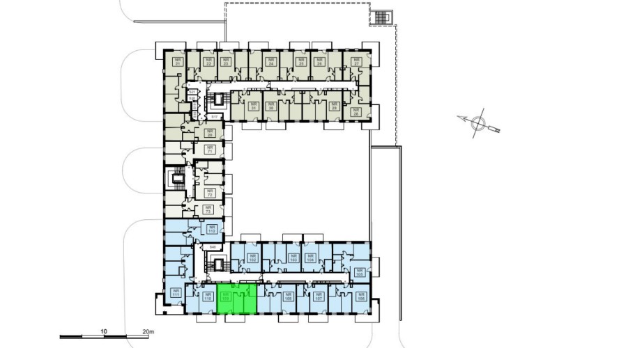
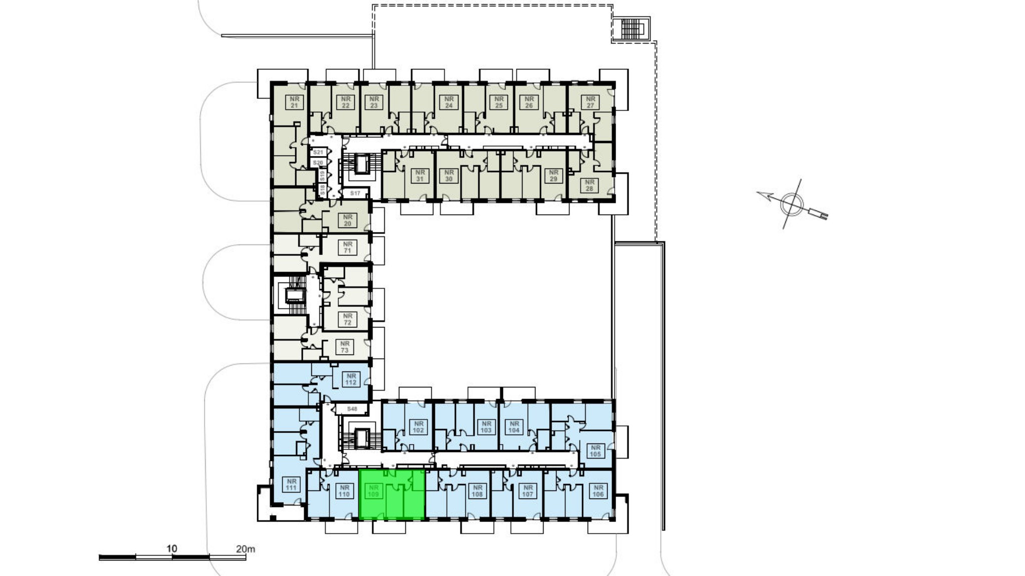
Budynek Ludowa C
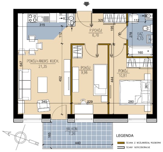
Powierzchnia 52,92 m2
Piętro 2 (Piętro II)
Pokoje 3
Całkowita cena brutto
439 236 PLN