cena Mieszkania

360 093 PLN

cena za metr kw.

8 700 PLN

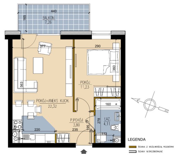
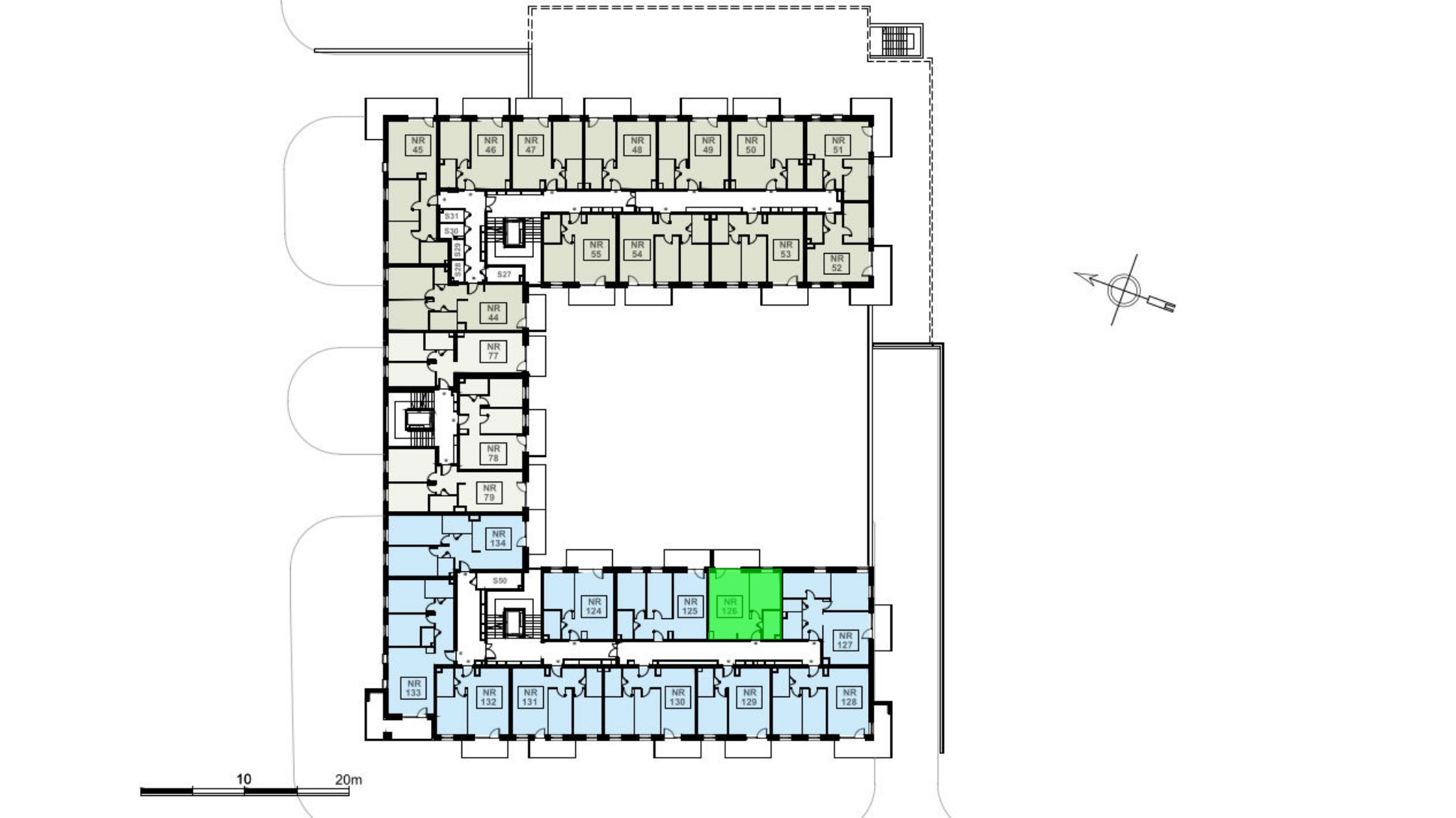
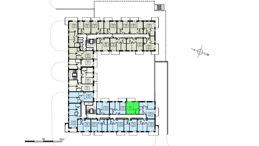
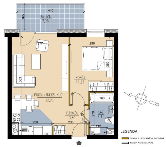
Budynek Ludowa C
Powierzchnia 41,39 m2
Piętro 4 (Piętro IV)
Pokoje 2
Całkowita cena brutto
360 093 PLN