cena Mieszkania

514 080 PLN

cena za metr kw.

8 500 PLN

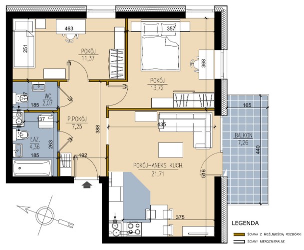
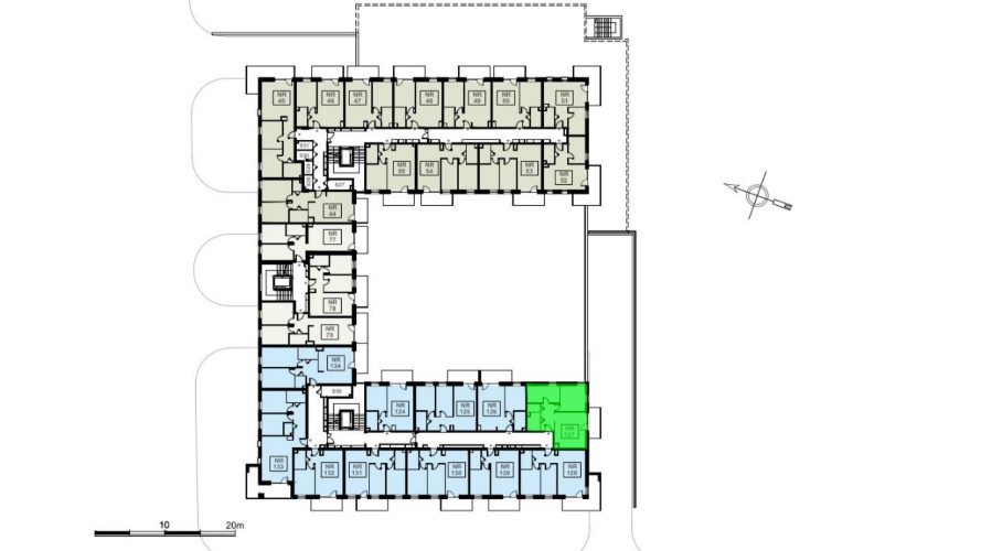
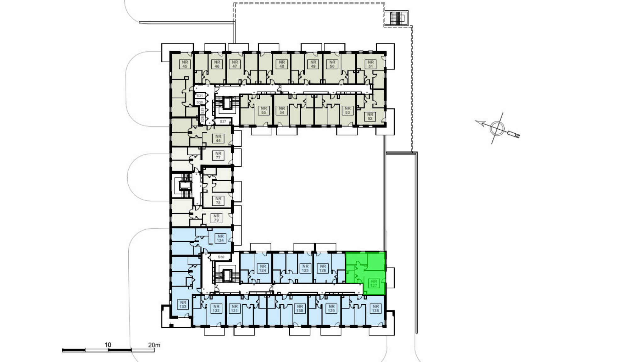
Budynek Ludowa C
Powierzchnia 60,48 m2
Piętro 4 (Piętro IV)
Pokoje 3
Całkowita cena brutto
514 080 PLN