cena Mieszkania

449 820 PLN

cena za metr kw.

8 500 PLN

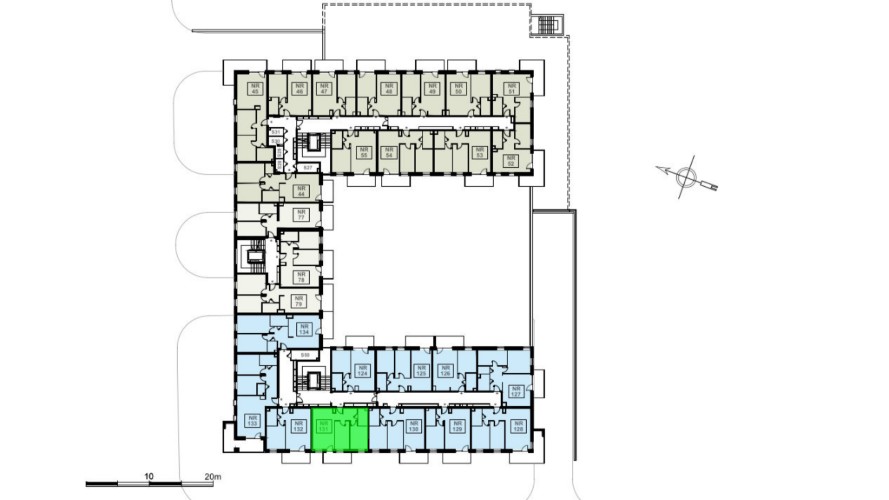
Budynek Ludowa C
Powierzchnia 52,92 m2
Piętro 4 (Piętro IV)
Pokoje 3
Całkowita cena brutto
449 820 PLN