cena Mieszkania

356 651 PLN

cena za metr kw.

8 300 PLN

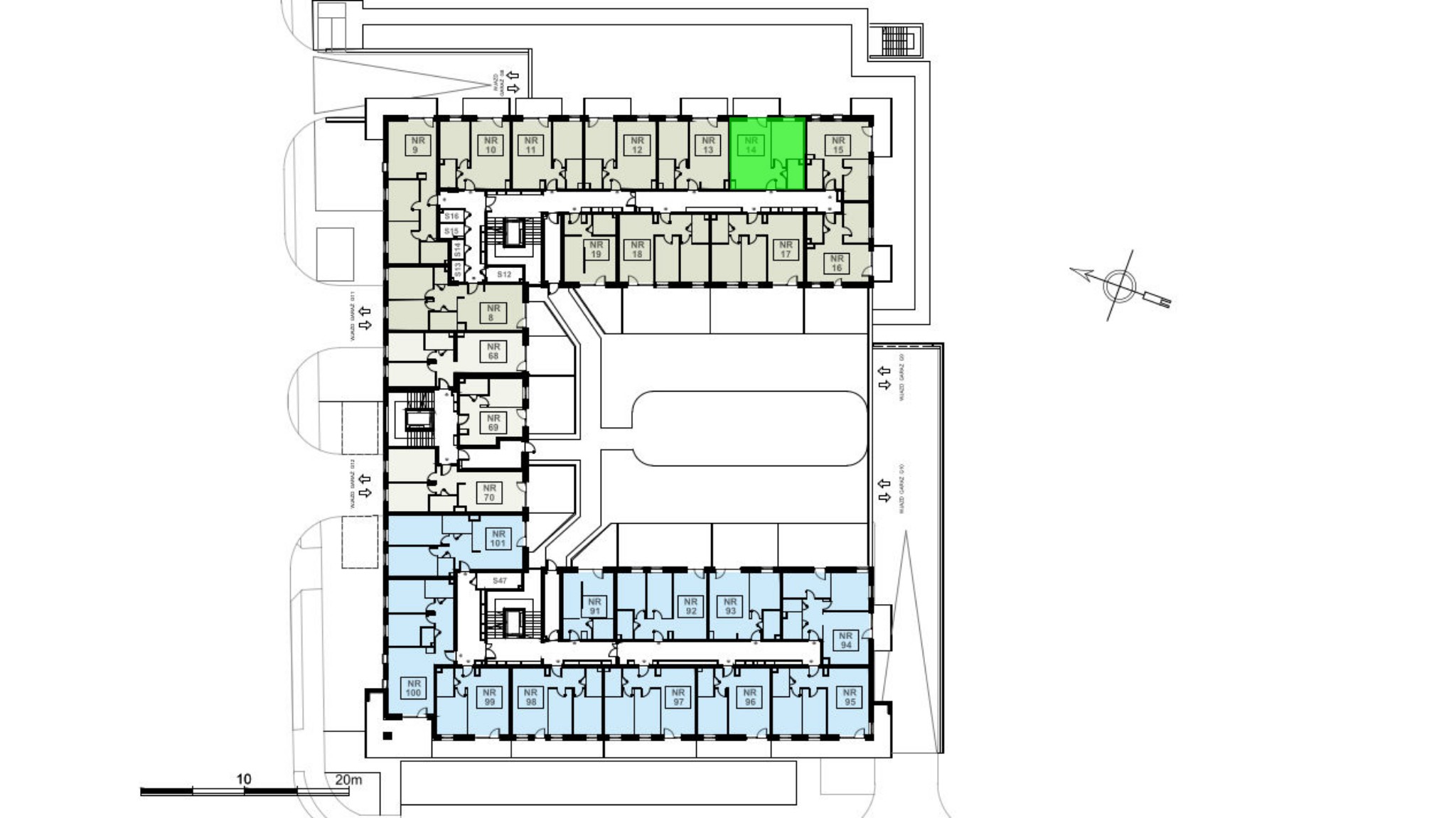
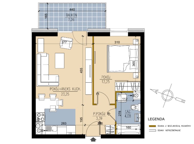
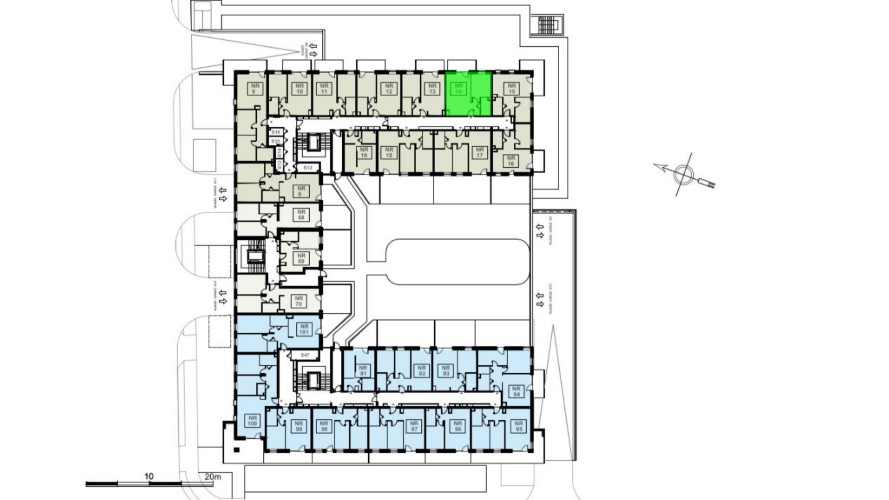
Budynek Ludowa C
Powierzchnia 42,97 m2
Piętro 1 (Piętro I)
Pokoje 2
Całkowita cena brutto
356 651 PLN