cena Mieszkania

359 484 PLN

cena za metr kw.

8 700 PLN

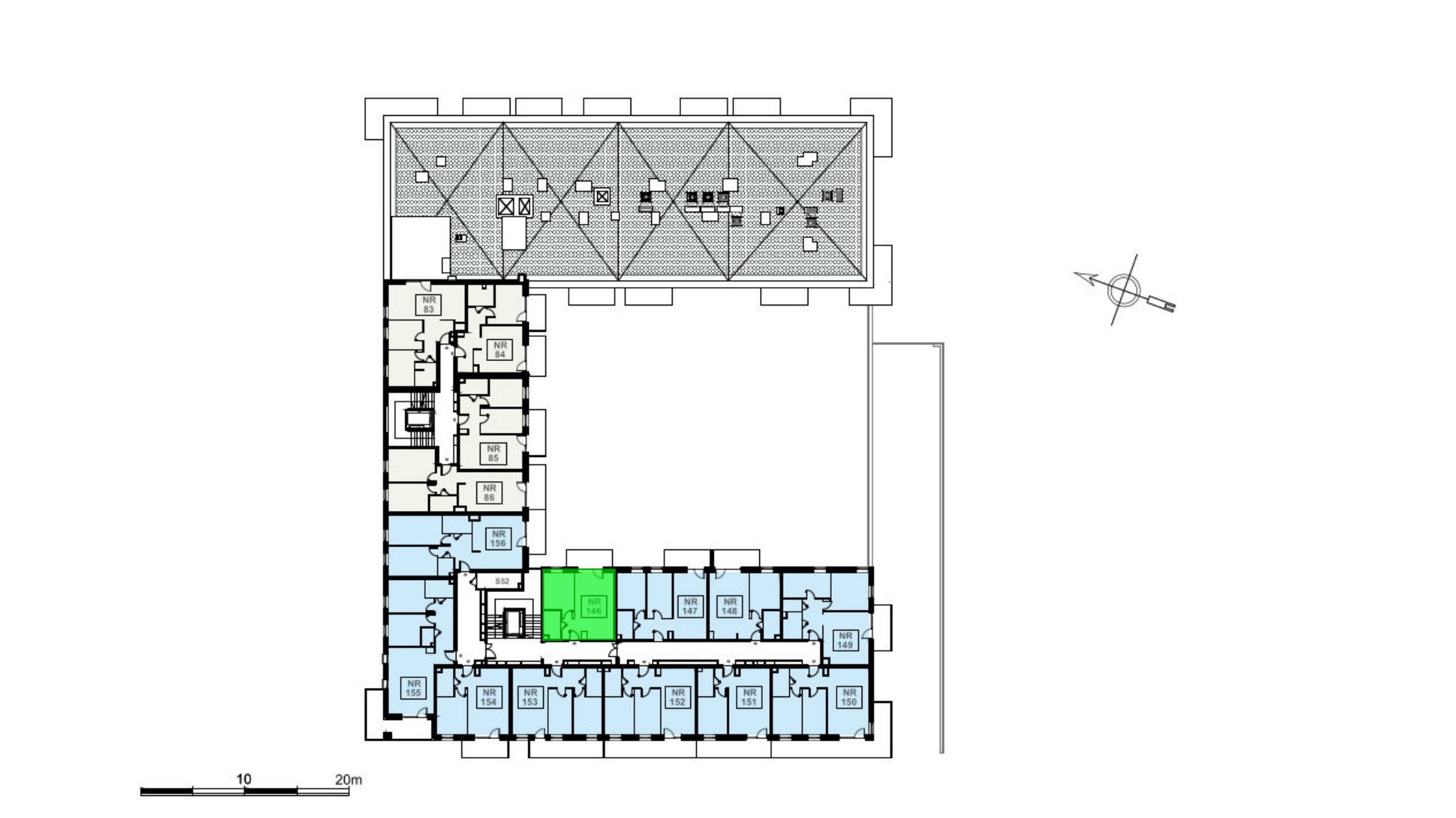
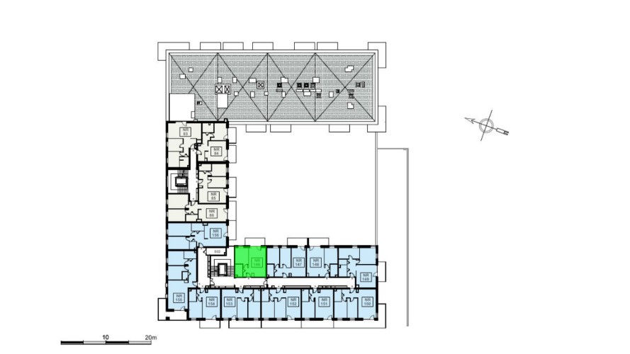
Budynek Ludowa C
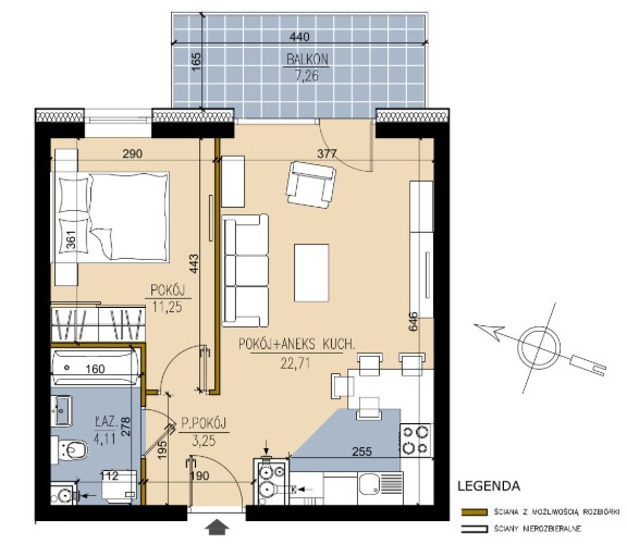
Powierzchnia 41,32 m2
Piętro 6 (Piętro VI)
Pokoje 2
Całkowita cena brutto
359 484 PLN