cena Mieszkania

575 568 PLN

cena za metr kw.

8 400 PLN

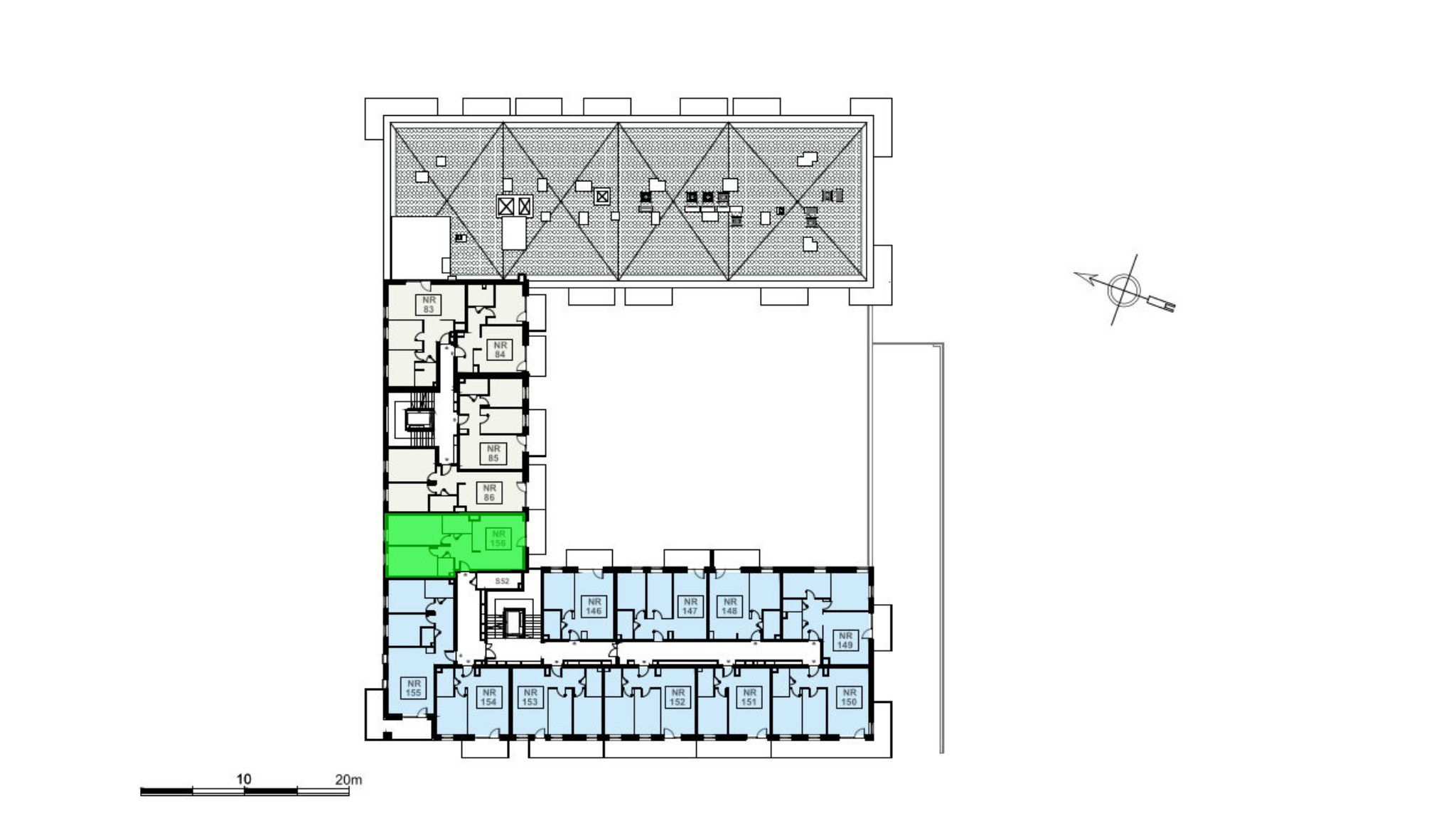
Budynek Ludowa C
Powierzchnia 68,52 m2
Piętro 6 (Piętro VI)
Pokoje 3
Całkowita cena brutto
575 568 PLN