cena Mieszkania

449 565 PLN

cena za metr kw.

8 500 PLN

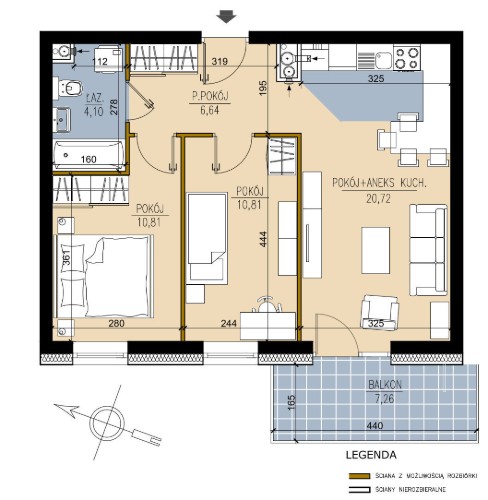
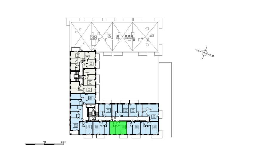
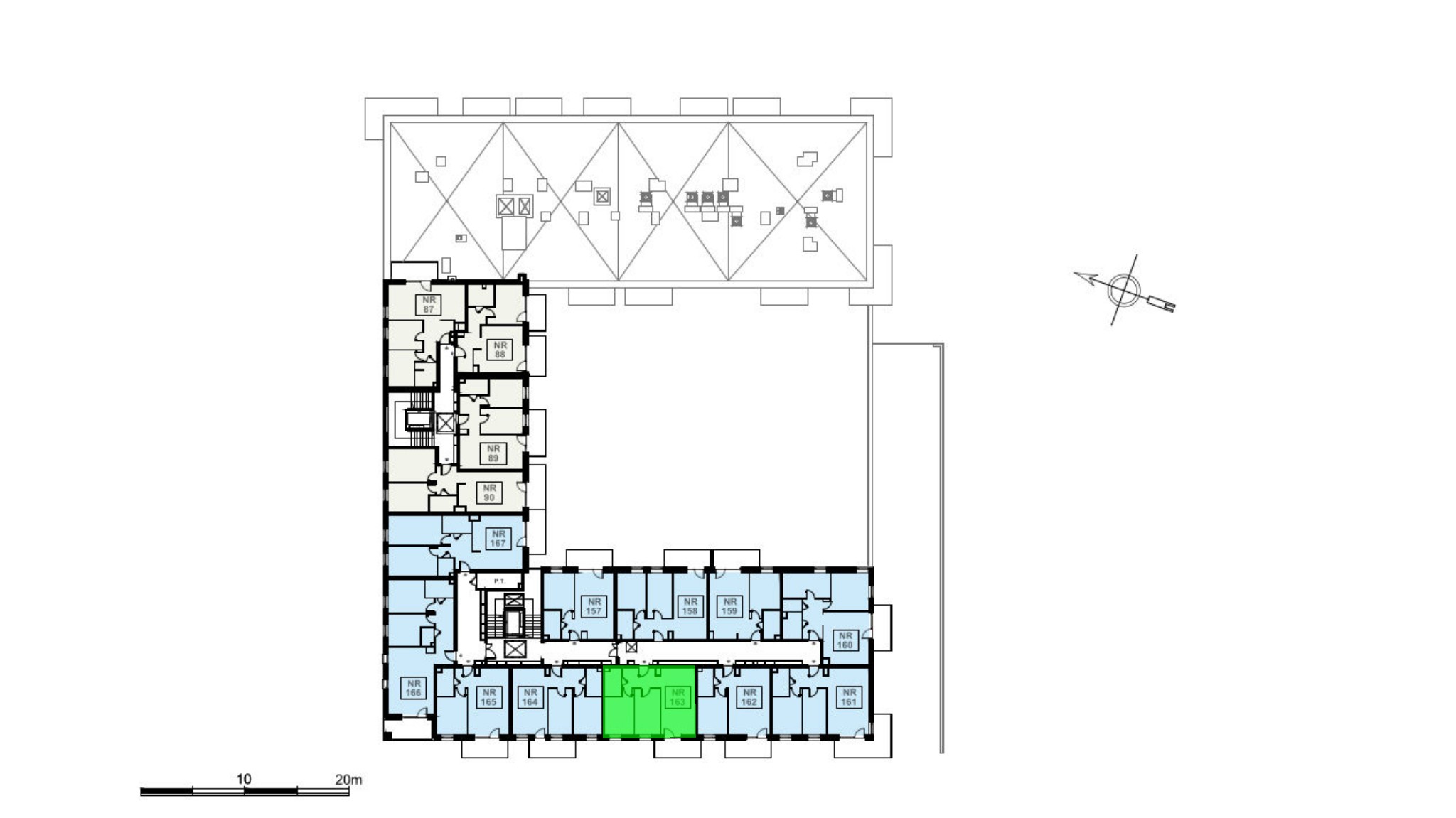
Budynek Ludowa C
Powierzchnia 52,89 m2
Piętro 7 (Piętro VII)
Pokoje 3
Całkowita cena brutto
449 565 PLN