cena Mieszkania

371 316 PLN

cena za metr kw.

8 700 PLN

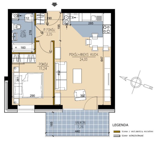
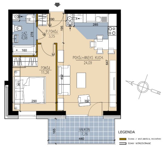
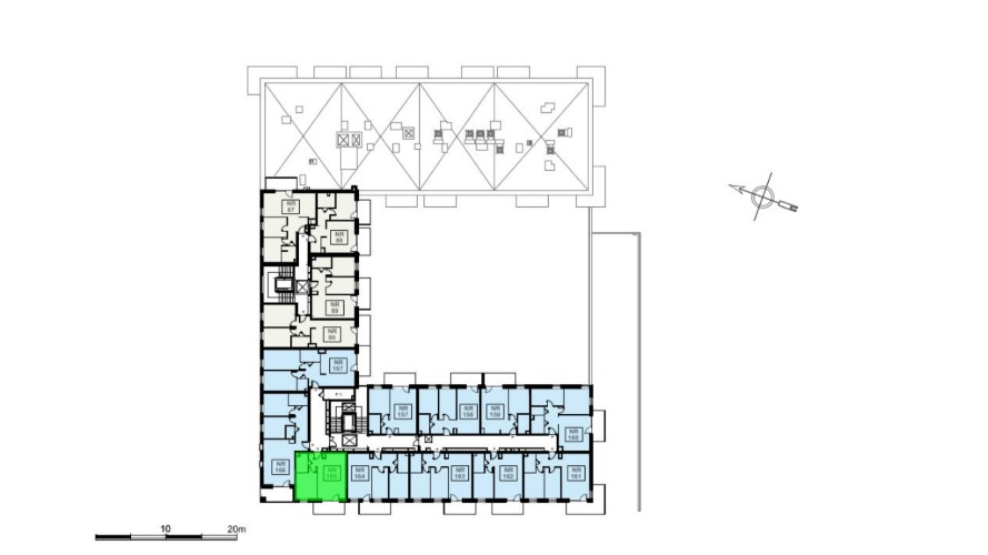
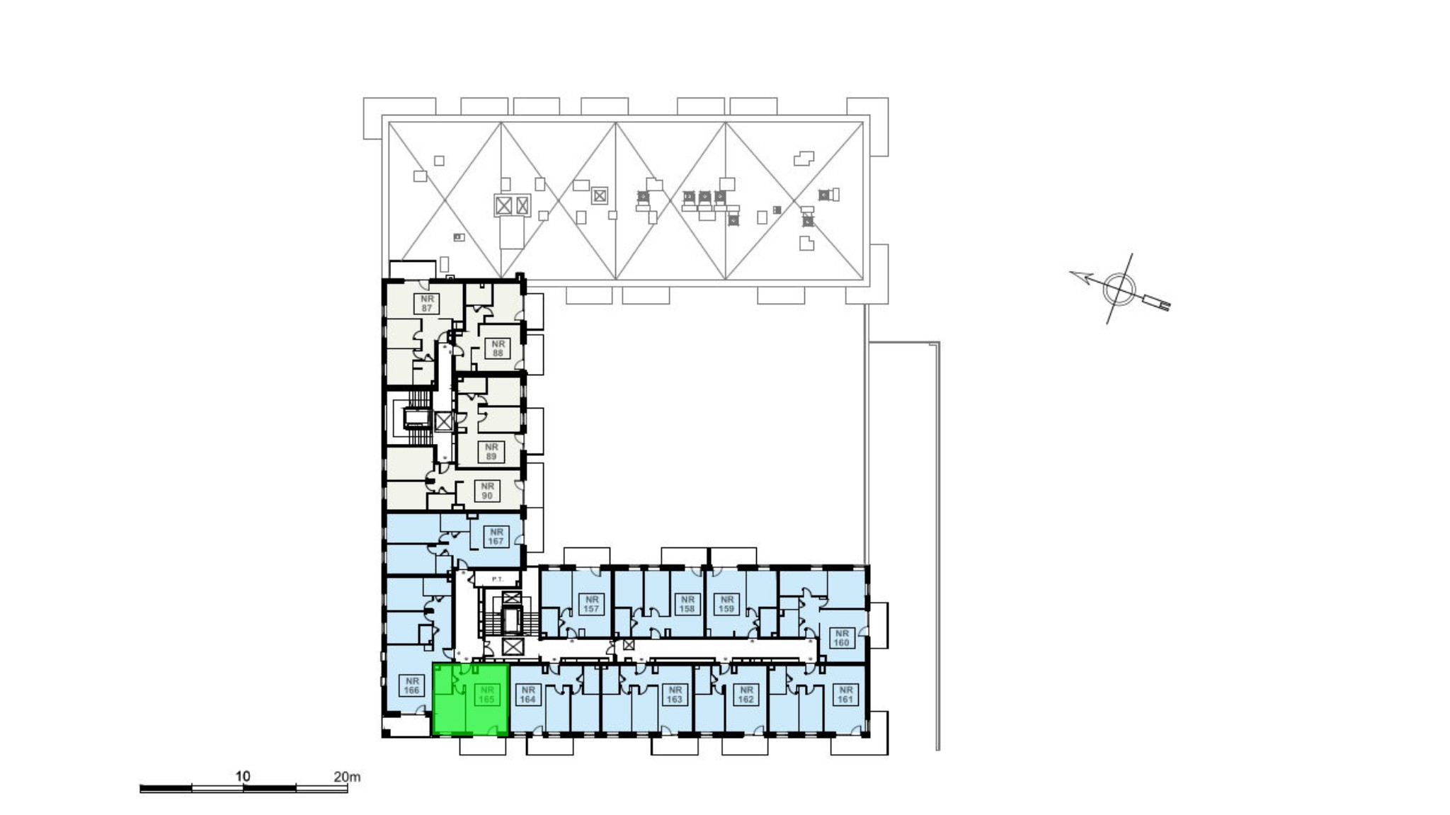
Budynek Ludowa C
Powierzchnia 42,68 m2
Piętro 7 (Piętro VII)
Pokoje 2
Całkowita cena brutto
371 316 PLN