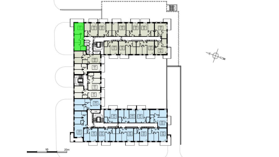
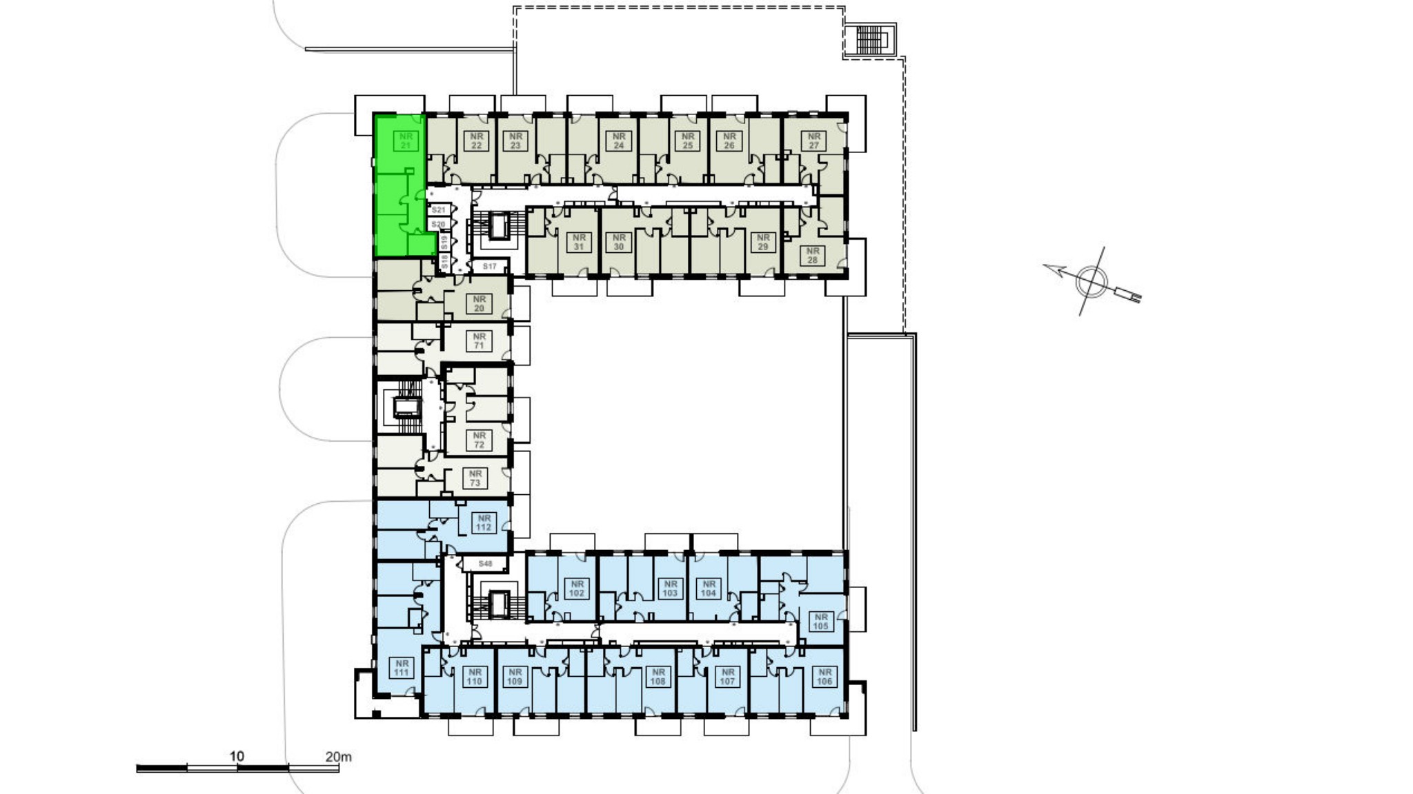
cena Mieszkania

513 939 PLN

cena za metr kw.

8 150 PLN

Budynek Ludowa C
Powierzchnia 63,06 m2
Piętro 2 (Piętro II)
Pokoje 3
Całkowita cena brutto
513 939 PLN