cena Mieszkania

365 245 PLN

cena za metr kw.

8 500 PLN

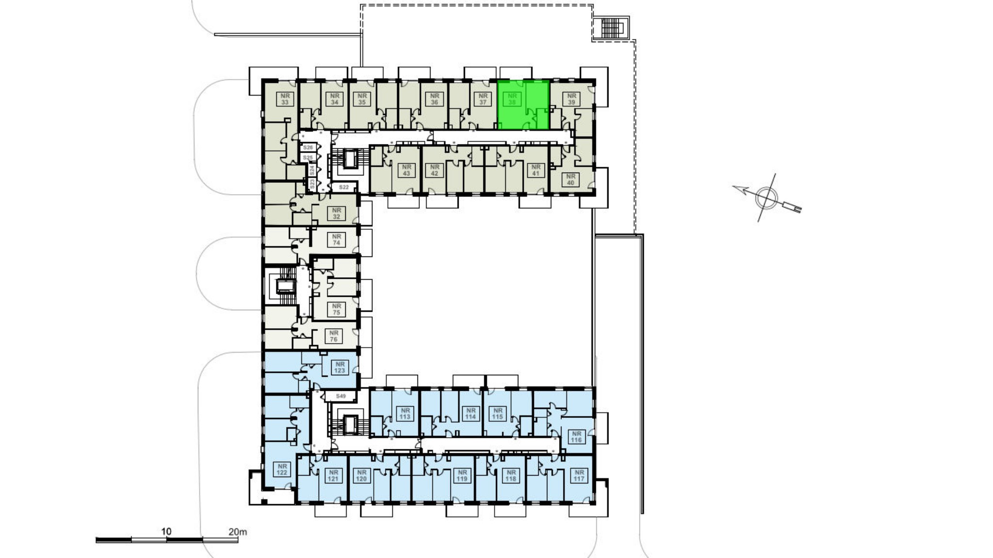
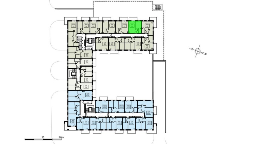
Budynek Ludowa C
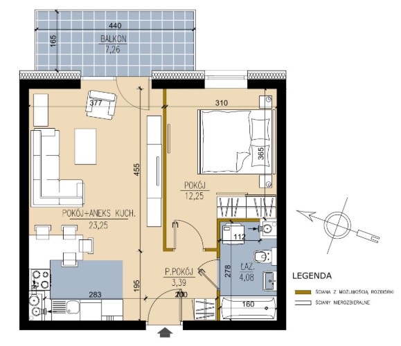
Powierzchnia 42,97 m2
Piętro 3 (Piętro III)
Pokoje 2
Całkowita cena brutto
365 245 PLN