cena Mieszkania

472 656 PLN

cena za metr kw.

8 600 PLN

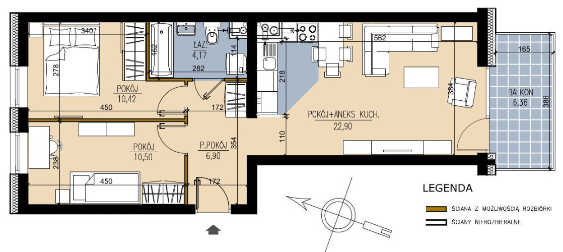
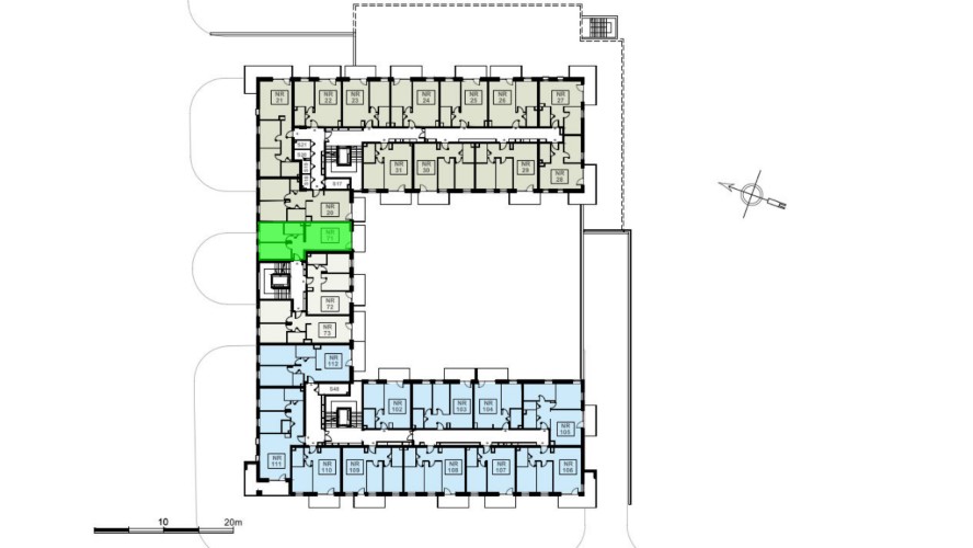
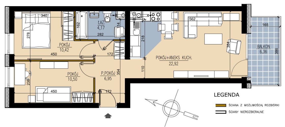
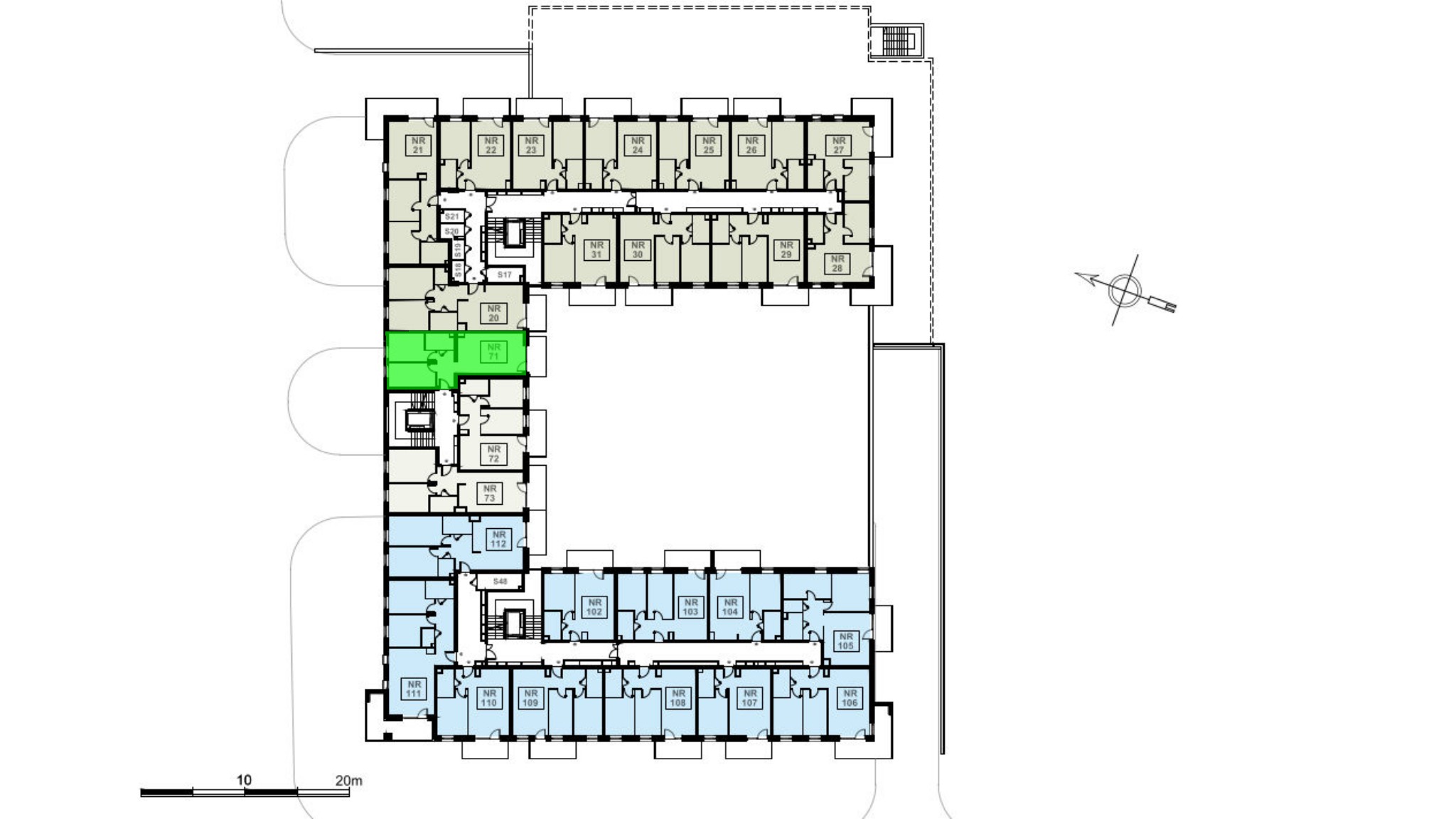
Budynek Ludowa C
Powierzchnia 54,96 m2
Piętro 2 (Piętro II)
Pokoje 3
Całkowita cena brutto
472 656 PLN