cena Mieszkania

476 174 PLN

cena za metr kw.

8 200 PLN

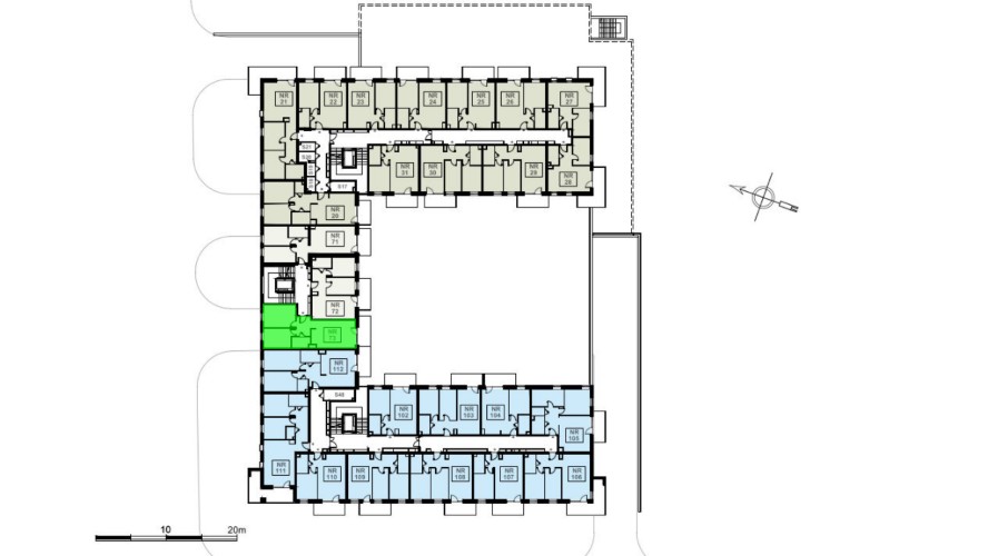
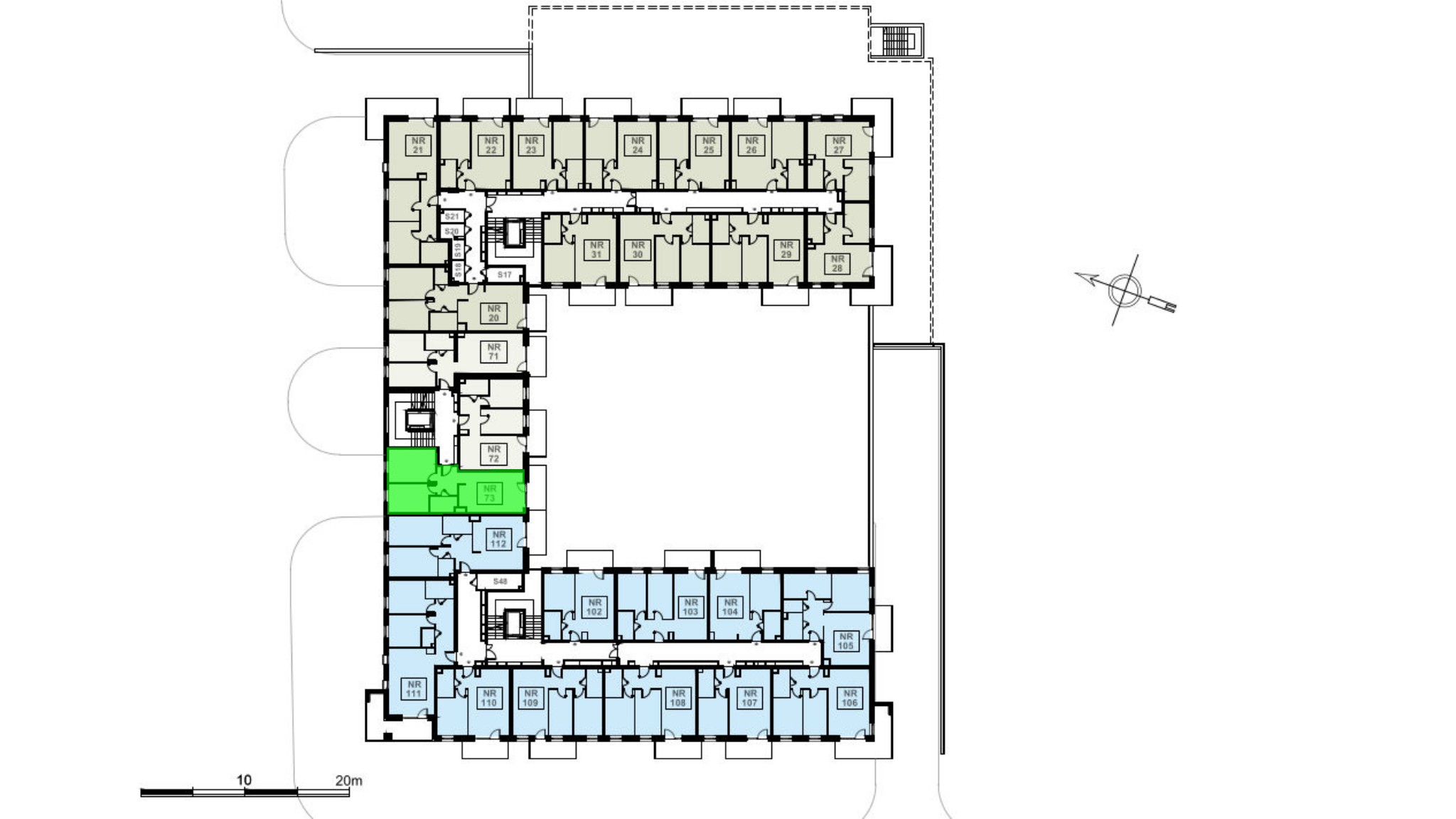
Budynek Ludowa C
Powierzchnia 58,07 m2
Piętro 2 (Piętro II)
Pokoje 3
Całkowita cena brutto
476 174 PLN