cena Mieszkania

493 595 PLN

cena za metr kw.

8 500 PLN

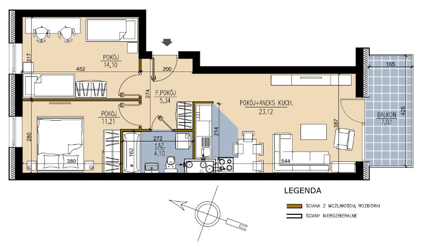
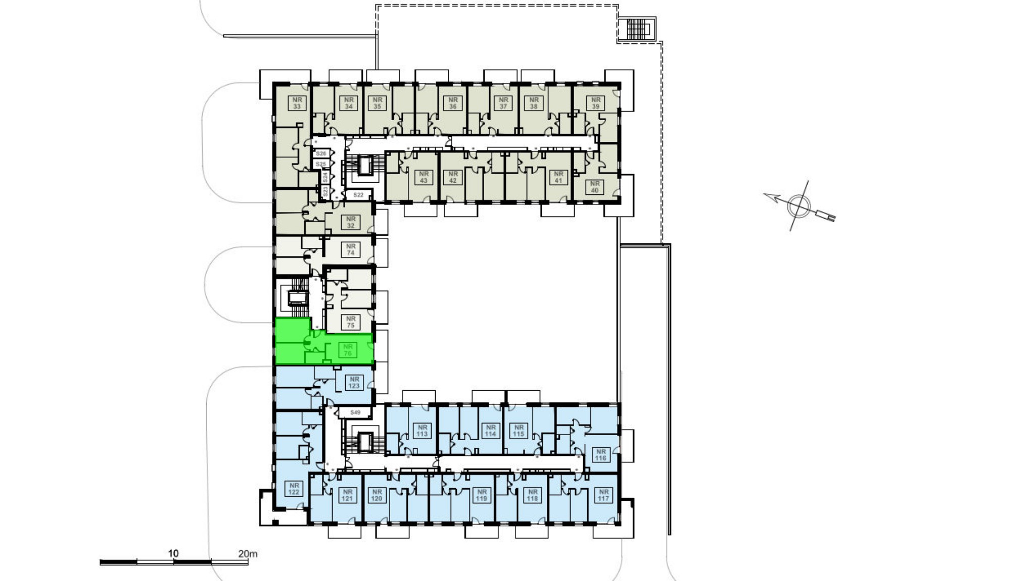
Budynek Ludowa C
Powierzchnia 58,07 m2
Piętro 3 (Piętro III)
Pokoje 3
Całkowita cena brutto
493 595 PLN