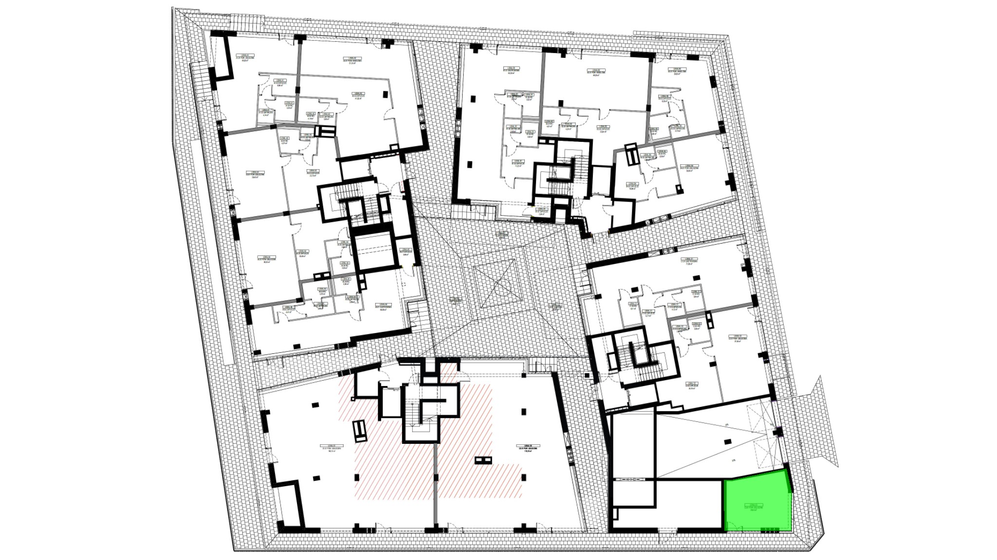
cena Lokalu usługowego (netto)

367 875 PLN

cena za metr kw.

12 500 PLN

Budynek Św. Rocha Bud.1
Powierzchnia 29,43 m2
Piętro 0 (Parter)
Całkowita cena netto
367 875 PLN