cena Mieszkania

662 886 PLN

cena za metr kw.

12 600 PLN

Budynek Św. Rocha Bud.1
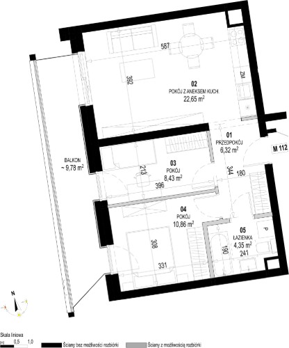
Powierzchnia 52,61 m2
Piętro 4 (Piętro IV)
Pokoje 3
Balkon ok. 9,78 m²
Całkowita cena brutto
662 886 PLN