cena Mieszkania

657 660 PLN

cena za metr kw.

11 300 PLN

Budynek Św. Rocha Bud.1
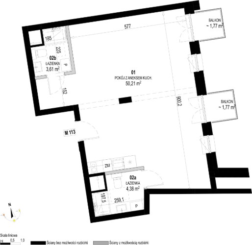
Powierzchnia 58,20 m2
Piętro 4 (Piętro IV)
Pokoje 1
Balkon ok. 1,77 m²
Balkon ok. 1,77 m²
Całkowita cena brutto
657 660 PLN