cena Mieszkania

507 873 PLN

cena za metr kw.

12 900 PLN

Budynek Św. Rocha Bud.1
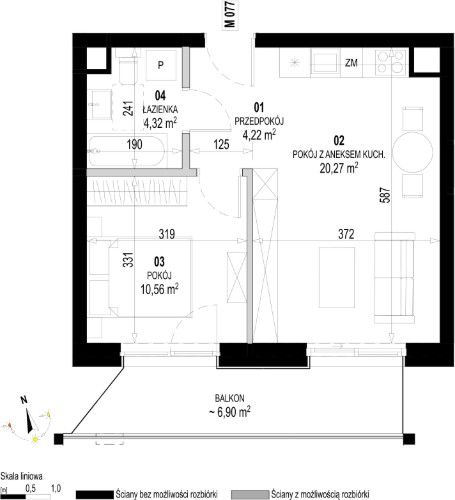
Powierzchnia 39,37 m2
Piętro 3 (Piętro III)
Pokoje 2
Balkon ok. 6,90 m²
Całkowita cena brutto
507 873 PLN