cena Mieszkania

563 968 PLN

cena za metr kw.

12 800 PLN

Budynek Św. Rocha Bud.1
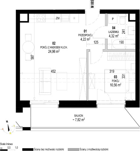
Powierzchnia 44,06 m2
Piętro 4 (Piętro IV)
Pokoje 2
Balkon ok. 7,82 m²
Całkowita cena brutto
563 968 PLN